Flat 15
Large Studio Flat
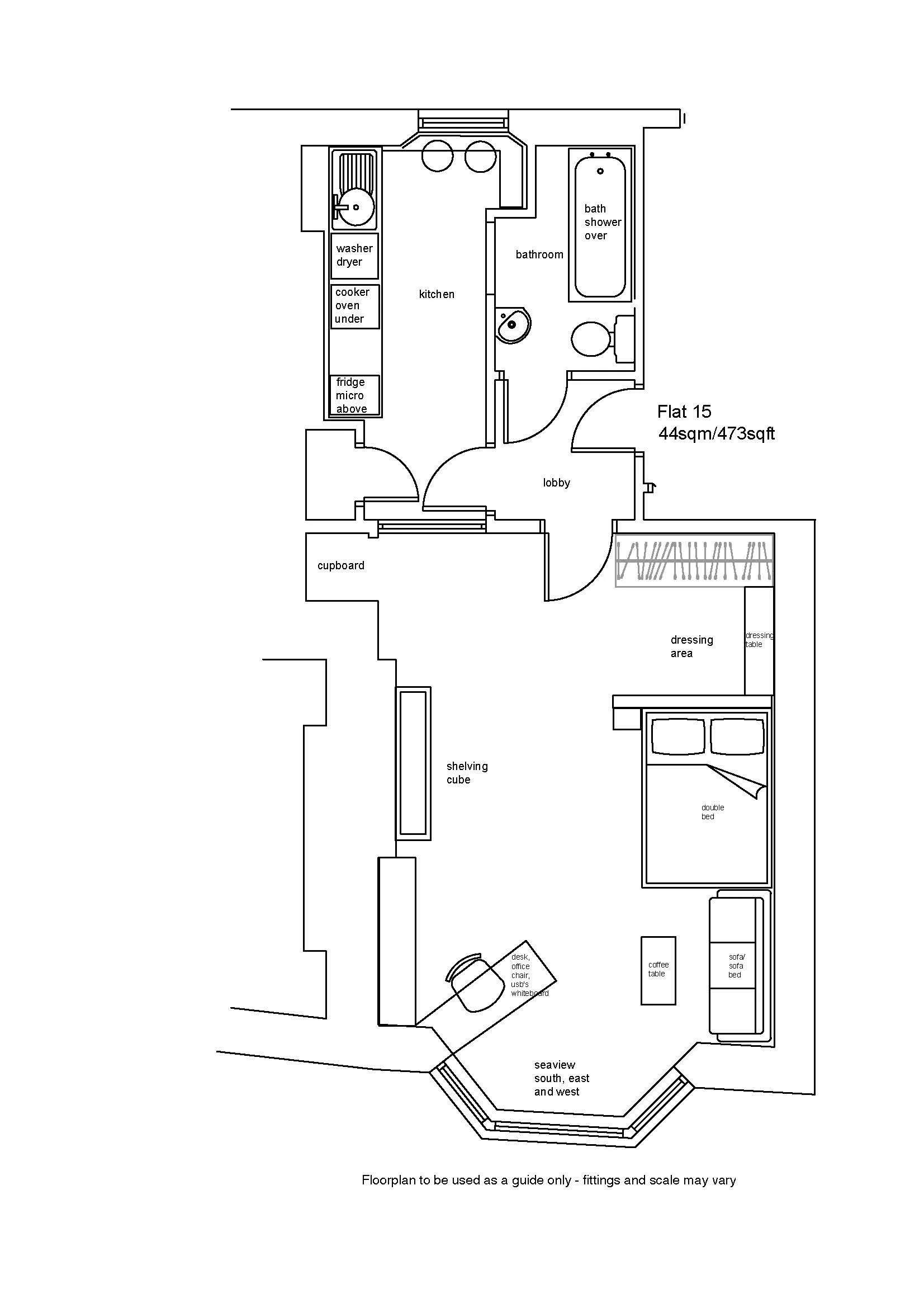
1st Floor Seaview Studio Flat with separate kitchen
Fully furnished and well-equipped throughout.
Lounge includes a double bed, double sofa-bed, coffee table, and a large fitted desk with chair and USB sockets, large fitted wardrobe and a dressing table with makeup mirror.
Separate Kitchen features a washer/dryer oven, microwave, hob, fridge/freezer, breakfast table and plenty of storage.
Bathroom includes a bath, shower, sink, toilet, and medicine cabinet.
£277 per week, includes WiFi
12 Month Contract - From August/September 2026













